Berrel Kräutler Architekten Berrel Kräutler Architekten

School building Kappelerhof Baden

Green Playground in front of the School building
Group room kindergarden
Site Plan
Site Plan
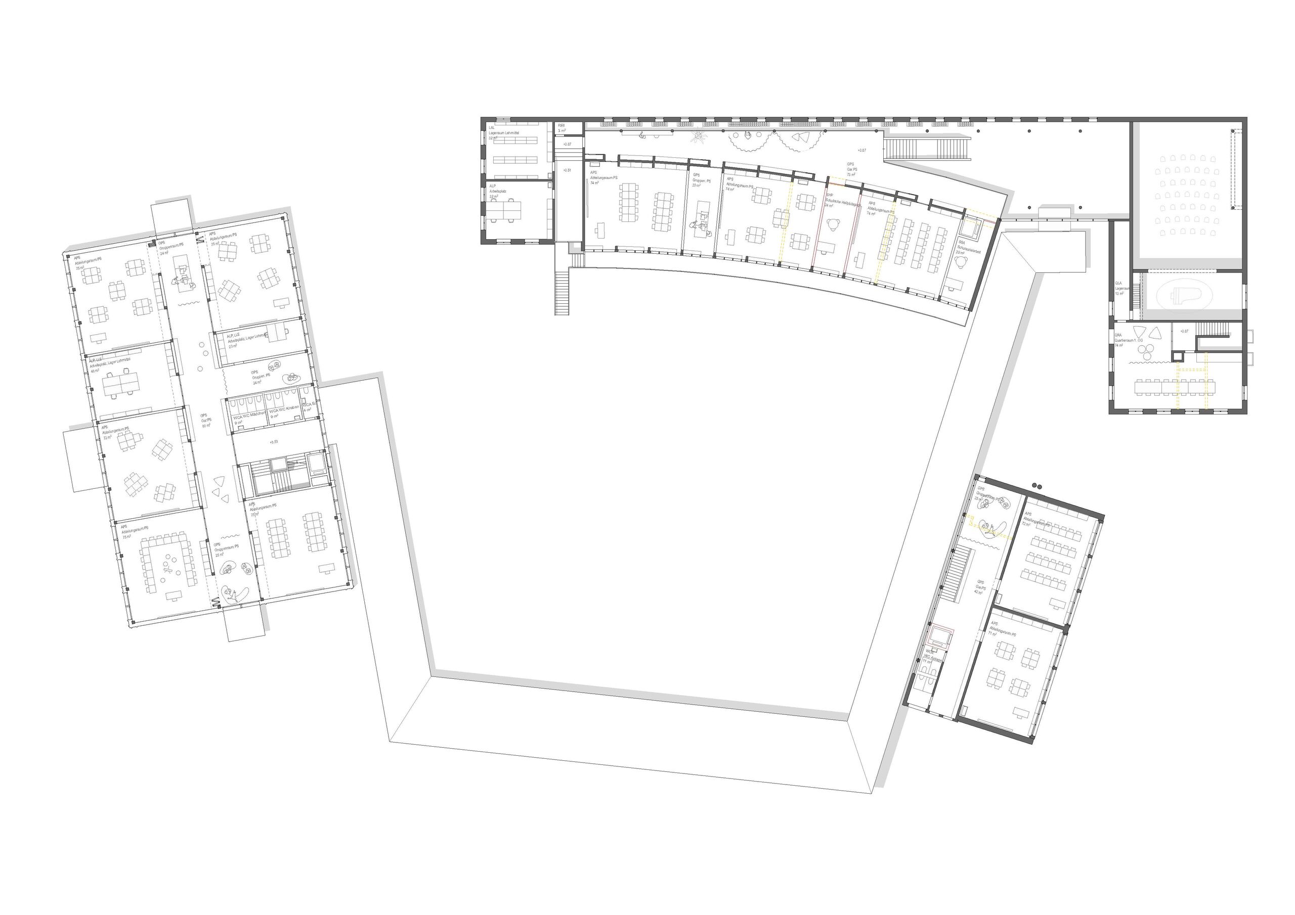
Ground Floor
Ground Floor
First Floor
First Floor
Section
Section
→ Info
↓ Next

Location: Baden
Date: Competition 2025

Berrel Kräutler Architekten AG
Maurice Berrel
Competition: Agniezka Slota, Jennifer Koschak, Tilmann Weissinger

Project participants
Client: Stadt Baden
Landscape architecture: Bryum GmbH
HVAC engineer: Bogenschütz AG
Wood construction physicist: PIRMIN JUNG Schweiz AG
Visualisisations: maaars

0328School building Kappelerhof Baden

The project emphasizes a respectful approach to the existing buildings and sustainable, minimal interventions. The “New Schoolhouse” remains the main structure, complemented by a compact extension built with a modular timber system. A unifying roof creates a central courtyard as a place for learning and community. The layout includes kindergarten on the ground floor, primary school clusters above, and specialized rooms on the top floor. Flexible spaces support diverse educational concepts. Sustainability is ensured through timber, clay, and foam glass construction, avoiding concrete, using durable materials, and reducing energy use. The result is a future-oriented, efficient, and healthy school environment.